Золоуловитель ЗУ 1.1 в Жанакоргане

Золоуловитель ЗУ 1.0
Золоуловитель ЗУ 1.0
Чертеж золоуловителя ЗУ 1.1
Золоуловитель ЗУ 1.1 чертеж
Котел с золоуловителем ЗУ-1.0
Котел КВр с золоуловителем ЗУ 1.0
Изготовление золоуловителя ЗУ 1.0
Изготовление золоуловителей ЗУ 1.0
Производство золоуловителей ЗУ 1.0
Производство золоуловителей ЗУ 1.0
Устройство золоуловителя ЭП 1.0
Устройство золоуловителя ЭП 1.0
Золоуловитель ЗУ 1.0
Чертеж золоуловителя ЗУ 1.1
Котел с золоуловителем ЗУ-1.0
Изготовление золоуловителя ЗУ 1.0
Производство золоуловителей ЗУ 1.0
Устройство золоуловителя ЭП 1.0
Цена
408 580 ₸
От 408 580 ₸ с доставкой до г.
Логотип WhatsApp Связаться
по WhatsApp
Золоуловитель ЗУ 1,1 представляет собой горизонтальный циклон, предназначенный для сухой инерционной очистки газов твердотопливных котлов от летучей золы Применяется с котлами малой мощности до 1100 КВт.

Технические характеристики

МаркаЗУ 1.1
Тип циклонаЗолоуловитель
ВидЗУ
Камера очищенных газовСборник
КПД80 %
Производительность4530-7670 м³/ч
Аэродинамическое сопротивление800 (80) Па (мм. вод. ст.)
Допустимая температура газов на входе до400 °С
Максимальный расход газа1.67 м³/с
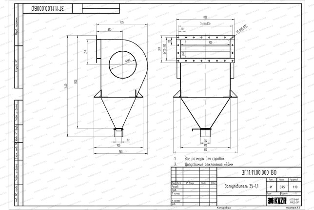
Сечение входного отверстия260*700 мм
Диаметр выходного отверстия380 мм
Объем бункера накопителя0.05 м³
Габаритные размеры: длина*ширина*высота720х833х1315 мм
Масса375 кг
ПрименяемостьКотлы мощностью 1.1 МВт
БрендKVZR

Промышленный золоуловитель ЗУ 1.1 в Жанакоргане

Золоуловители ЗУ 1.1 Жанакорган устанавливаются в котельной сразу за котлом, перед дымососом. Пылеуловители могут эксплуатироваться вне помещения котельной под навесом при температуре окружающего воздуха от -60 °С до +40 °С. При такой эксплуатации циклон золоуловитель утепляют теплоизоляционными материалами.

Золоуловитель ЗУ 1,1 представляет собой горизонтальный циклон, предназначенный для сухой инерционной очистки газов от летучей золы (более 50 мкм) с максимальной температурой 260 °С.

По расположению оси очищаемого потока газа золоуловители 1.1 относят к типу горизонтального циклона. Дымовой газ поступает из выходного отверстия котла во входное отверстие золоуловителя ЗУ 1,1 и движется между криволинейными стенками корпуса. Под действием гравитационных сил из потока очищаемого газа выделяются твердые частицы золы и сажи, которые накапливаются в бункере сборнике расположенного внизу золоуловителя. Зола удаляется снизу через шибер. Очищенные дымовые газы отводятся из пылеуловителя по патрубку через круглое выходное отверстие на боковой стенке, далее поступают в газоходы котельной и через дымовую трубу удаляются наружу котельной.

В комплект поставки золоуловителя ЗУ 1.1 входят:

  • бункер-накопитель
  • корпус золоуловителя.

Золоуловитель ЗУ 1,1 применяется для улавливания золовых отложений после водогрейных котлов КВр и КВм мощностью до 1.45 МВт.

Купить золоуловитель ЗУ 1.1

Для того чтобы купить золоуловитель ЗУ 1.1 в Жанакоргане, вы можете оформить заявку в отделе сбыта по телефону +7-7172-69-59-73, либо оформить заявку онлайн. Наши менеджеры дадут консультацию по подбору вспомогательного оборудования для выбранных вами моделей и рассчитают стоимость доставки до вашего региона.

Сертификаты товара

Сертификат на золоуловители (циклоны)
Сертификат на золоуловители (циклоны)

Опросные листы

Все опросные листы
Опросный лист на циклоны
Заполнить опрос
Опросный лист на опоры циклона
Заполнить опрос

Собственное производство

Котельный завод производит
  • Паровые котлы от 300 кг до 2.5 тонны пара в час
  • Промышленные водогрейные котлы от 150 КВт до 4 МВт на всех видах топлива
  • Механические топки ТШПМ, шурующая планка и ТЛПХ, ленточное полотно прямого хода
  • Циклоны для очистки воздуха и дымовых газов для производств и промышленных отраслей
  • Транспортеры и системы топливоподачи и шлакоудаления
Подробнее о производстве
Собственное производство
Смотреть видео
с производства