Паровые котлы
Промышленные паровые котлы в Жанакоргане
Промышленные паровые котлы марки КП и Е, КПС, ПКН и прочее с жаровыми и дымогарными трубами выпускаются котельными заводами и в настоящее время, так как они нетребовательны к качеству воды, обладают большой аккумулирующей способностью и относительно просты в эксплуатации.
Наш котельный завод производит паровые котлы марки КП, Е на всех видах топлива.
| Конструкция котла | Производительность | Топливо | Температура пара | Давление пара |
|---|---|---|---|---|
| Жаротрубный |
|
|
|
|
|
1000 кг/ч |
|
|
|
Паровой котел Е
Наиболее простым котлом, рассчитанным на производительность 0,11 кг/с (0,4 т/ч), является агрегат типа Е-0,4/9 Г, модель МЗК-8Г (рис. 6-15,а). Паровые котлы E предназначены для сжигания в топке природного газа и выработки насыщенного пара с давлением 0,9 МПа (9 кгс/см2).Паровые котлы состоят из коаксиальных цилиндров 1, соединенных приваренными штампованными кольцами 2. Наружный цилиндр имеет под верхним и над нижним кольцом штампованные трубные доски, в которые завальцованы 92 прямые кипятильные трубы диаметром 38Х2,5 мм с плавниками или приварными полосами (рис. 6-15,б), служащими для создания газоплотной стенки.
Внутренний цилиндр образует топочную камеру, на потолке которой установлена газовая горелка низкого давления 4. Потолок и под камеры закрыты огнеупорным бетоном, а часть стен цилиндра - огнеупорной обмуровкой. Продукты сгорания выходят из топки через отверстие В и обогревают снаружи кипятильные трубы и стенку внешнего цилиндра, омываемую водой. Пройдя всю или половину длины окружности, дымовые газы через газоход Г удаляются в дымовую трубу. Воздух нагнетается вентилятором с напором 1,3 кПа (130 кгс/м3) под металлическую обшивку, проходит систему каналов и через регистр поступает в горелку.

Рис. 6-15. Паровые котлы с наддувом для работы на природном газе типа Е-0,4/9Г, модель МЗК-8Г на 0,11 кг/с (400 кг/ч) и р=0,9 МПа (9 кгс/см3). а - общий вид; б - газоплотная стена из труб с плавниками или приварными полосами.
Таким образом, паровые котлы работает с давлением в топочной камере (наддувом) в 0,4 - 0,5 кПа (40 - 50 кгс/м2) и без дымососа. Тепловое напряжение объема топки составляет около 1 МВт/м3 или 850Х103 ккал/(м3-ч), температура уходящих газов около 250°С, к. п. д. котла 86,0%.
Вся арматура котла установлена на верхнем кольце; в обоих кольцах выполнены лючки для очистки и вальцовки труб.
Питательная вода для удаления солей жесткости проходит докотловую обработку в установленном рядом с котлом фильтре, а затем плунжерным насосом подается в котел. Продувка выполняется из объема нижнего кольца.
Все оборудование смонтировано в общий блок на стальной раме, к которой приварены опоры или стойки.
Котел имеет автоматическое регулирование горения, питания и может быть пущен и остановлен автоматически. Котел и установка разработаны МО ЦКТИ.
Котел с принудительной циркуляцией
На рис. 6-16 показаны два типа котлоагрегатов такой же производительности и на те же параметры. Котел с принудительной циркуляцией (рис. 6-16,а) состоит из четырех коаксиальных змеевиков, выполненных из труб диаметром 22X2,5 мм. Полость внутреннего змеевика представляет собой топочную камеру, работающую с наддувом, а средние и наружный змеевики образуют конвективную поверхность нагрева. Газы из топочной камеры поступают в нижнюю часть газохода, омывают змеевики и через отверстие в верхней крышке выходят в дымовую трубу. Рядом с змеевиками установлен вертикальный сепаратор, из которого пар поступает к потребителю, а отделившаяся котловая вода (с солями) направляется в теплообменник для подогрева питательной воды. Питательная вода подается в тот же сепаратор мембранным насосом, одна полость которого подает питательную воду, а вторая прокачивает воду и пароводяную смесь через змеевики.

Рис. 6-16. Вертикальные паровые котлы с наддувом типов Пр-0,4/9Г и П-0,4/9Г для работы на природном газе, а - с принудительной циркуляцией; б - прямоточный.
Топливом для котла служит природный газ. Воздух, нагнетаемый вентилятором в металлический кожух, подогревается, омывая наружный змеевик, и затем поступает в горелку.
Котел имеет к. п. д. около 85%, температура уходящих газов составляет примерно 350°С. Котел оборудован автоматикой горения и безопасности (защитами от повреждений).
Прямоточный котел
Прямоточный паровой котел КП, показанный на рис. 6-16, б , сходен по устройству с предыдущей конструкцией, но дополнительно оборудован автоматизированной установкой химической водоподготовки и вместо мембранного имеет поршневой насос.

Рис. 6-17. Вертикальный цилиндрический котел типа ММЗ-1М с D =0,278 кг/с (1 т/ч), р=0,9 МПа (9 кгс/см2) с топкой для твердых топлив.
В обоих котлах все вспомогательное оборудование смонтировано в специальном шкафу. Котел же и прочее оборудование опираются на общую раму и при монтаже требуют присоединения к источникам воды и электроэнергии.
Конструкция вертикального котла ММЗ
Наиболее характерным представителем вертикальных котлов является котел ММЗ на производительность 0,278 кг/с (1 т/ч) и давление 0,9 МПа (9 кгс/см2) (рис. 6-17).
Котел состоит из цилиндрической топочной камеры 1, оборудованной ручной колосниковой решеткой 16, пучка кипятильных труб 12 и направляющих плит - кирпичных 5, чугунных 6. За обечайкой топочная камера переходит в установленную на котле стальную дымовую трубу 10, в которой имеется поворотная заслонка 11 для регулирования тяги. Топочная камера размещена внутри цилиндрического корпуса с расстоянием между стенками около 40 мм. В нижней части камера и корпус ниже уровня колосниковой решетки соединены штампованным кольцом.
Корпус 2 выше топочной камеры примерно на 1 м, за счет чего образовано паровое пространство и увеличен водяной объем котла.
В корпусе котла имеются люки 3 для вальцовки кипятильных труб 12, лючки 14 для очистки их и корпуса от накипи и шлама. Загрузка топлива на решетку ведется вручную через специальную дверцу 4. Пучок труб 12 можно обдуть паром этого же котла с помощью трубы 7, вводимой через отверстие 8. Котел ставится на кирпичное основание, образующее зольник, поддувало 9, в которое вентилятор нагнетает воздух. Топку для сжигания ряда топлив выполняют вынесенной вниз. Тяга обычно естественная.
Вертикальные котлы (см. рис. 5-1,а) выпускались заводами в большом количестве и разных модификаций: с кипятильными трубами большого (до 300 мм) диаметра; с несколькими пучками кипятильных труб малого диаметра, оси которых пересекались под углами (например, котлы Шухова, Шухова - Сарафа); с пучками кипятильных и дымогарных труб (котлы ТМЗ, ВГД); с дымогарными трубами (котлы ВК, котлы для кранов и др.).
Общей для них является обязательность сжигания качественного топлива. Достоинствами таких котлов являются малая занимаемая площадь, невысокая требовательность к качеству питательной воды и относительная простота обслуживания. Это привело к широкому распространению вертикальных котлов в промышленных и отопительных установках, особенно временного типа. Однако такие котлы при неправильном обслуживании весьма опасны из-за крупных разрушений, происходящих при их взрывах.
Горизонтальные цилиндрические котлы
Вторым типом котла с большим водяным объемом на единицу поверхности нагрева являются горизонтальные цилиндрические котлы с одной или двумя жаровыми трубами. Котлы могут работать как в паровом, так и в водогрейном режиме, их производство осуществляется и до настоящего времени.
Примеры конструктивного выполнения таких котлов даны на рис. 6-18, где на рис. 6-18,а показан котел с одной гладкой жаровой трубой 1, смещенной для усиления циркуляции в объеме с центра внешнего цилиндра корпуса 2. Котел имеет поверхность нагрева около 40 м2 при длине ≈6 м. При обогреве продуктамц сгорания не только жаровой трубы, но и наружного корпуса в несколько ходов (рис. 6-18,б) котел может работать на разных топливах. Топочное устройство выполняют внутренним и располагают в начальном участка жаровой трубы или внешним, для чего требуется выносная топочная камера.
На рис. 6-18,б показан паровой котел с двумя жаровыми трубами в обмуровке; питательная вода подается сверху через патрубок в корпусе.
Отбор пара, прошедшего специальный сепаратор 2, осуществляется из трубы 8. Арматура котла включает в себя водоуказательные приборы 3, манометр 4, питательный клапан 5, спускной клапан 6, рычажные грузовые предохранительные клапаны 7 и иногда специальные устройства для удаления шлама.
Как видно из рис. 6-18,б, дымовые газы, выйдя из жаровых труб, проходят обратно к фронту, а затем поворачивают к борову, расположенному под полом котельной.
Котел опирается на чугунные или сварные стулья (см. рис. 5-63). Каркас необходим только для обвязки кладки, лежащей на фундаменте. Размеры этих котлов при небольшой, около 0,55 кг/с (2 т/ч) производительности и давлении 0,9 МПа (9 кгс/см2) весьма значительны - диаметр корпуса более 2 м, а длина 10 м.

Рис. 6-18 Горизонтальные цилиндрические паровые котлы.
Значительный объем воды на каждый 1 м2 поверхности нагрева, примерно 200 л, делает такие котлы инерционными, т. е. обладающими высокой аккумулирующей способностью. Котлы могут работать на воде низкого качества. Расход металла на каждый 1 м2 поверхности нагрева доходит до 200 кг.
Конструкция горизонтальных паровых котлов типа Д-1500
К группе горизонтальных паровых котлов с жаровой трубой, но с дымогарными трубами за ней относятся паровые котлы типа Д-1500, выпускаемый для передвижных и мелких электростанций или производственных котельных (рис. 6-19). При необходимости из котла можно вынуть в сторону фронта жаровую трубу 1 вместе с пучком дымогарных труб 2. Топочное устройство выполняют внутренним в частично обмурованной жаровой трубе либо внешним - выложенным из кирпича. При необходимости получения перегретого пара за дымогарными трубами присоединяют огневую коробку 3 с размещенным в ней змеевиковым пароперегревателем 4 горизонтального типа для возможности полного удаления воды при останове котла. Отбор пара осуществляется через сухопарник 5, на входе в который установлены сепарирующие устройства. Кроме штуцера, для отвода пара на сухопарнике устанавливают предохранительные клапаны. В верхней части жаровой трубы над колосниковой решеткой или над объемом топки установлена легкоплавкая пробка. При снижении уровня воды ниже допустимого положения пробка расплавляется и очаг горения в топке гасится пароводяной смесью.

Рис. 6-19. Паровые котлы типа Д-1500 (локомобильный) с пароперегревателем на 0,42 кг/с (1,5 т/ч) и давление p до 1,5 МПа (15кгс/см2)
Арматура подобных котлов устанавливается на фронтовой части для возможности постоянного контроля. В огневой коробке, которую называют дымовой камерой, имеются отверстия для обдувки перегревателя паром, для коллекторов и трубопроводов насыщенного и перегретого пара, для выхода дымовых газов через регулирующую тягу заслонку в дымовую трубу. Дымовая труба опирается на эту же коробку. Дымовая камера выполняется стальной с двойными стенками, пространство между которыми заполнено тепловой изоляцией.
Паровые котлы с дымовой камерой опираются на специальные лапы 6, приваренные к наружному корпусу. Корпус покрывается слоем тепловой изоляции и листовой сталью. Все паровые котлы с жаровыми и дымогарными трубами, вертикальные и горизонтальные, полностью изготовляются и испытываются на заводе-изготовителе и в собранном виде доставляются к месту установки. Водотрубные паровые котлы выпускаются с различным расположением труб, с естественной и принудительной циркуляцией.
Конструкция паровых котлов с естественной циркуляцией типа ПКН-2
Паровые котлы Жанакорган с естественной циркуляцией получили наибольшее распространение. Примерами такой конструкции язляются двухбарабанный котел с топкой для мазута типа ПКН-2 (рис. 6-20,а) и котел (рис. 6-20,б) с топкой для сжигания твердого топлива на ручной колосниковой решетке. Оба котла типа Е-1/9 предназначаются для получения насыщенного пара 0,278 кг/с (1 т/ч) при давлении 0,9 МПа (9 кгс/см2).
Топочная камера этих котлов полностью экранирована; поверхность нагрева экранов и труб, освещаемых из топки, составляет около 5 м2, или 20% от суммарной поверхности. Продукты сгорания из топочной камеры проходят конвективный коридорный пучок кипятильных труб, омываемых поперечно, и выходят из него в газоход к дымовой трубе. Тепловое напряжение объема топки при сжигании мазута, распыливаемого паровой или ротационной форсункой завода "Ильмарине", составляет при номинальной нагрузке 0,6 МВт/м3 или 500-103 ккал/(м3Xч); температура уходящих газов 300 - 350°С и к. п. д. котла 76,5 - 70%.
Паровые котлы выполнены сварными, экраны не имеют водоподводящих и отводящих труб, так как их коллекторы и трубы присоединены непосредственно к барабанам. Обмуровка котла облегченная щитовая, только под и часть стен камерной топки выполнены из шамотного кирпича и огнеупорного бетона. Положительной особенностью этих котлов является его поставка заводом-изготовителем вместе с оборудованием для водоподготовки и топливоприготовления, а также с дымовой трубой и другими устройствами одним крупным транспортабельным блоком.
Конструкция котла ДКВР
Основным типом паровых котлов производительностью от 0,7 до 5,56 кг/с (от 2,5 до 20 т/ч) на давление 1,3 и 2,3 МПа (13 и 23 кгс/см2) является котел ДКВР, разработанный ЦКТИ совместно с Бийским заводом. Котел состоит из двух барабанов (верхнего и нижнего), между которыми размещен коридорный пучок вертикальных гнутых труб с диаметром 51X2,5 мм. Трубы завальцованы или заварены d стенки барабанов, толщина которых зависит от внутреннего давления. Барабаны расположены вдоль оси котла, и при DK = 0,7; 1,1; 1,9 и 2,78 кг/с (2,5; 4,0; 6,5 и 10,0 т/ч) верхний барабан выполнен длиннее нижнего; в верхний барабан включены верхние концы экранных труб, барабан обогревается излучением из топки.
В котлах производительностью 5,56 кг/с (20 т/ч) и части конструкций производительностью на 2,78 кг/с (10 т/ч) оба барабана имеют почти одинаковую длину; экраны же имеют не только нижние, но и верхние коллекторы. Из топочной камеры продукты сгорания топлива поступают в камеру догорания, входят затем в пучок, разделенный на три газохода, и омывают его трубы поперечным потоком. Деление пучка труб на газоходы осуществлено перегородками, первая из которых выполнена из шамотного кирпича, а вторая - из чугуна.
В котлах DK=2,78 и 5,56 кг/с (10 и 20 т/ч) дымовые газы омывают пучок кипятильных труб в один ход. Для установки пароперегревателя уменьшают число труб в кипятильном пучке (обычно первого газохода).
Перегреватель изготовляют из труб диаметром 32X3 мм. Вход пара в перегреватель - прямо из барабана, выход - в коллектор, расположенный над потолочным перекрытием пучка. Оси труб перегревателя расположены почти вертикально.
Паровые котлы поставляются блоками или с полностью собранными поверхностями нагрева (см. рис. 5-68). Собранные котлы с обмуровкой и обшивкой называют транспортабельными. Температура газов за котлами 0,7 - 2,78 кг/с (2,5 - 10 т/ч) в пределах 280 - 340°С в зависимости от сжигаемого топлива. К котлам запроектированы чугунные водяные экономайзеры ВТИ, греющие питательную воду до 138 - 165°С и охлаждающие дымовые газы до 150 - 180°С, что позволяет получить к. п. д. 75 - 91%.
Паровые котлы ДКВР-20 (показанные на рис. 6-21) имеют температуру газов, выходящих из котла, в пределах 370 - 415°С. За котлом может быть установлен чугунный или стальной водяной экономайзер либо трубчатый стальной воздухоподогреватель. Это позволяет снизить температуру газов до 150 - 180°С, нагреть воду до 146 - 174°С или воздух до 170°С и получить к. п. д. 76,5 - 90,6%.
Общий вид котла ДКВР-20 с решеткой ЧЦР показан на рис. 6-22. Котел выдает перегретый пар, для чего установлен пароперегреватель, размещение которого видно из рис. 6-22,а. Трубы боковых экранов включены в верхние коллекторы, и экранирован потолок топочной камеры. В боковые экраны вода поступает из нижнего барабана, а в фронтовой из верхнего барабана. Котел устанавливается на постаменте.


Рис. 6-20. Вертикально-водотрубные паровые котлы с D=0,278 кг/с (1 т/ч) и р = 0,9 МПа (9кгс/см2), а - типа ПКН-2 для работы на мазуте; б - типа E-1/9 для работы на твердом топливе
Обмуровка котла облегченная с металлической обшивкой и с ограниченным применением шамотного кирпича. Из рис. 6-22 видно размещение устройства для возврата уноса несгоревших частиц твердого топлива из газоходов в топочную камеру.
Таблица 6-1. Габаритные размеры котлов ДКВР

Паровые котлы ДКВР-20 поставляются заводом-изготовителем тремя крупными блоками, из которых два состоят из экранов, а третий - из барабанов и пучка труб.Схемы компоновок котлов ДКВР с различными топочными устройствами и их габаритйые размеры и наличие ступенчатого испарения воды приведены на рис. 6-23 и в табл. 6-1.
Конструкция двухбарабанных вертикально-водотрубных котлов
К двухбарабанным вертикально-водотрубным котлам относятся агрегаты типов СУ-15-39; СУ-20-39 и ГМ-10-39, выпускавшиеся Белгородским котлостроительным заводом. В обозначении типа этих котлов принято: СУ - слоевой угольный и ГM - газомазутный, далее паропроизводительность (т/ч) и давление пара на выходе из котла (кГс/см2). Перечисленные котлоагрегаты имеют барабаны, расположенные вдоль или поперек оси котла; развитый пучок кипятильных труб, включенных в барабаны; топочную камеру со сплошным экранированием стен; расположенный за фестоном пароперегреватель и хвостовые поверхности нагрева - стальной водяной экономайзер и трубчатый воздухоподогреватель. Однако эти котлы сняты с производства и заменены более совершенными.

Рис. 6-21. Паровые котлы ДКВР-20-13 с топкой для сжигания газа и мазута в облегченной обмуровке.
Паровые котлы с П-образной поверхностью нагрева
Наибольшее распространение получили паровые котлы с компоновкой поверхностей нагрева по П-образной схеме с одним барабаном средней мощности, начиная с паропроизводительности 5,6кг/с (20 т/ч) и выше. К таким агрегатам относятся ТС-20-у; ТП-20-у; ТЗ-25/15ГМ; ТС-35-у; ТП-35-у; БГ и БМ-35; Б-50-40; К-50-14 и другие на давление пара за агрегатом 4,0;. 2,4 и 1,4 МПа (40, 25, 14 кгс/см2) и на производительность от 5,6 и до 14 кг/с (от 20 до 50 т/ч).

Рис. 6-22. Паровые котлы ДКВР-20-13-250 (с чугунной цепной решеткой для слоевого сжигания каменных углей и антрацита). Продольный разрез.
Конструктивными особенностями таких котлоагрегатов являются наличие топочной камеры со сплошным экранированием, отсутствие пучка кипятильных труб с заменой его фестоном из труб заднего экрана, наличие стального водяного экономайзера и воздухоподогревателя.
При такой компоновке поверхностей нагрева котельные агрегаты легче выполнить пригодными для работы на твердых топливах с разной приведенной влажностью и зольностью. Примером П-образной компоновки котельного агрегата с топкой для сжигания в слое антрацитов марок АСШ и АРШ являются агрегаты типов ТС-20-у, ТС-35-у, ТП-20 и ТП-35-у Белгородского котельного завода. Продольный разрез котлоагрегата ТС-35-у производительностью 9,8 кг/с (35 т/ч) и на давление 4,0 МПа (40 кгс/см2) и температуру 440°С показан на рис. 6-24.

Рис. 6-22а. Паровые котлы ДКВР-20-13-250. Поперечный разрез.
Паровые котлы имеют длинный задний свод, низко расположенный над слоем, и короткий высоко поднятый и закрытый огнеупором передний свод для верхнего зажигания топлива. Далее выполнен пережим для перемешивания продуктов сгорания с воздухом и только за этими участками имеется объем со сплошным экранированием стен для охлаждения дымовых газов. Затем по ходу газов расположены фестон, выполненный из труб заднего экрана, и вертикальный пароперегреватель с поверхностным пароохладителем в рассечку. Трубы экранов имеют диаметр 60X3 мм, пароперегревателя - 38X3 мм, стального водяного экономайзера - 32X3 мм, воздухоподогревателя - 40X1,5 мм.

Рис. 6-23. Схемы компоновок котлов типа ДКВР с различными топочными устройствами и габаритные размеры (в объеме заводской поставки).
В барабане (диаметр 1500 мм) расположены устройства для сепарации пара, ввода реактивов, непрерывной продувки, распределения питательной воды и ступенчатого испарения котловой воды.
Обмуровка накаркасная тяжелая, каркас несущий.
Изменения в конструкции вертикально-водотрубного котлоагрегата экранного типа с П-образной компоновкой для сжигания природного газа и мазута можно видеть из сопоставления рис. 6-25, на котором изображен котлоагрегат типа Б-25/15ГМ, производительностью 7 кг/с (25 т/ч) на параметры пара 1,5 МПа (15 кгс/см2) и 350°С, и рис. 6-28, на котором изображен котлоагрегат с топкой для твердого топлива.
Холодная воронка заменена подом 1 из огнеупорной кладки, поставлены три горелки 2, из которых две нижние являются основными, а верхняя служит для регулирования температуры перегретого пара, хотя на стороне входа пара в перегреватель имеется поверхностный пат роохладитель 3.

Рис. 6-24. Котлоагрегат ТЭ-35у с П-бразной компоновкой поверхностей нагрева и слоевой топкой ЧЦР для сжигания антрацита.

Рис. 6-25. Котлоагрегат БГ-25/15ГМ с топкой для природного газа и мазута.
Размеры труб экранов перегревателя и воздухоподогревателя оставлены теми же, что и в рассмотренных котлоагрегатах, а водяной экономайзер для большей компактности выполнен из труб 28x3 мм. Для защиты от коррозии при работе на мазуте воздух подогревается паром в калорифере до 55°С. Воздух поступает в верхний куб воздухо¬подогревателя. В котлоагрегате имеются три последовательно включеные ступени испарения: две в барабане и третья в выносных циклонах 4.
Обмуровка агрегата выполнена облегченного типа накаркасной. Для удаления наружных отложений с конвективных поверхностей нагрева применена система очитски дробью. Котлоагрегат поставляется частично крупными блоками.
Дальнейшая работа завода над над конструкцией котлоагрегата для сжигания природного газа и мазута привела к созданию котлоагрегата Е-25-14ГМ (рис. 6-26), расчитанного на производительность 7 кг/с (25т/ч) на давление 1, 4 МПа (14 кгс/см2) и на перегрев пара до 250°С.
В котлоагрегатах для барабана с опускными обогреваемыми трубами и развитый чугунный водяной экономайзер 7.
По такому же типу запроектирован котлоагрегат ГМ 50-14/250 производительностью 14кг/с (50 т/с). Котел имеет два барабана, соединеенных пучком вертикальных труб, топочную камеру стены, под и потолок, которые полностью закрыты экранами из труб 60X3 мм; горизонтальный конвективный перегреватель, за которым находится стальной трубчатый воздухоподогреватель и вынесенный в отдельный газоход чугунный ребристый водяной экономайзер системы ВТИ.

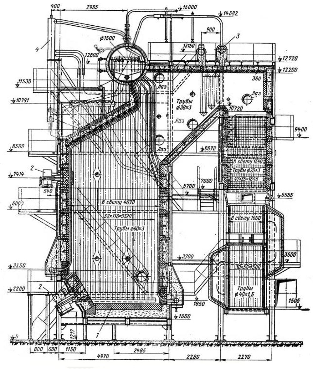
Рис. 6-26. Котлоагрегат Е-25-14 с камерной топкой для сжигания газа и мазута. 1 - топка, 2 - выносной цикл, 3 - задний экран, 4 - пароперегреватель, 5 - кипятильные трубы, 6 - воздухоподогреватель, 7 - чугунный водяной экономайзер.
Продольный разрез котлоагрегата показан на рис. 6-27. На боковых стенах топочной камеры установлены четыре газомазутные горелки. Продукты сгорания топлива перед входом в пучок шахматно расположенных труб проходят фестон. Пучок кипятильных труб с тем же, что у экранов, диаметром 60x3 мм имеет 16 обогреваемых опуск¬ных труб диаметром 219X6 мм и 14 необогреваемых опускных труб 133X4 мм.

Рис. 6-27. Котельный агрегат типа ГМ-50-14/250 с топкой для газа и мазута.
Обогреваемые опускные трубы размещены по нижней образующей верхнего барабана, необогреваемые - на его концах. Все экраны, кроме фронтового, выделенного во вторую ступень испарения, питаются водой из нижнего барабана; фронтовой экран - из выносных циклонов. Пароперегреватель выполнен из труб диаметром 32X3 мм, включенных во входную и выходную камеры; трубы расположены горизонтально в шахматном порядке; регулятор температуры перегрева пара отсутствует. За перегревателем установлен стальной одноходовой воздухоподогреватель из труб 40X1,5 мм. Далее продукты сгорания выходят в вынесенный подъемный газоход и чугунный водяной экономайзер, который очищать дробью нельзя.
Обмуровка топочной камеры - кирпичная с обвязочным каркасом, поворотного и опускного газоходов, выполнена из огнеупорного бетона (накаркасная), а газоход водяного экономайзера имеет металлические стенки и тепловую изоляцию. Для очистки .поверхностей нагрева экранов, пучка кипятильных труб и чугунного водяного экономайзера применяется обдувка паром.
Котельный агрегат поставляется заводом-изготовителем блоками и узлами (за исключением обмуровки и обвязочного каркаса топочной камеры). Наличие ступенчатого испарения позволяет подавать в котлоагрегат воду с достаточно высоким содержанием 250 мг/кг.
Котлоагрегаты с П-образной поверхностью нагрева и сплошным экранированием топок
Для крупных котельных, снабжающих потребителя насыщенным или слабоперегретым паром, изготовляются серии котлоагрегатов производительностью 14 кг/с (50 т/ч) на параметры 1,4 МПа (14 кгс/см2) и 250°С, рассчитанных на сжигание в камерных топках каменных углей (типа К-50-14), бурых углей (типа Б-50-14/250) и фрезерного торфа (типа Т-50-14/250). Котлоагрегаты запроектированы с П-образной
Для того чтобы купить паровой котел в Жанакоргане вы можете оформить заявку в отделе сбыта по телефону +7 (7172) 69-59-73 или оформить заявку он-лайн.
Статьи
Документы завода
Собственное производство
- Паровые котлы от 300 кг до 2.5 тонны пара в час
- Промышленные водогрейные котлы от 150 КВт до 4 МВт на всех видах топлива
- Механические топки ТШПМ, шурующая планка и ТЛПХ, ленточное полотно прямого хода
- Циклоны для очистки воздуха и дымовых газов для производств и промышленных отраслей
- Транспортеры и системы топливоподачи и шлакоудаления
с производства
Мы на